nieruchomości
Wypełnij formularz i kliknij SZUKAJ poniżej

Numer oferty
 
 
Lokalizacja
Ulica
Cena
Powierzchnia
Liczba pokoi
oferty specjalne

Notes » Zgłoś ofertę » Kalkulator opłat » Wirtualne spacery » O nas » Opinie techniczne » Świadectwo Ener. » Kontakt »

Szczegóły Oferty

mieszkanie ( sprzedaż )

908633

Numer:
908633
Miasto:
SZCZECIN, WARSZEWO
Cena:
340 000 PLN kalkulator
Cena za mkw:
9 714,29 PLN mkw
Powierzchnia:
35.00 m2
Liczba pokoi:
2
Piętro:
0
Liczba pięter:
1
Rodzaj kuchni:
aneks
Rok budowy:
0
Piwnica:
TAK
Media - gaz:
TAK

Opis


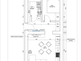
Oferujemy do sprzedaży dwupokojowe mieszkanie na Warszewie.

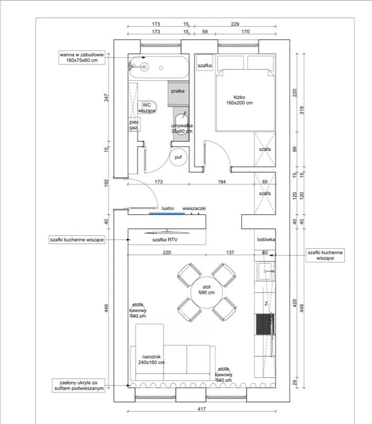
Lokal ma powierzchnię 35m2 i składa się z pokoju z aneksem kuchennym, sypialni, łazienki z wc i przedpokoju.
Mieszkanie na wysokim parterze po generalnym remoncie w zabytkowej, wyremontowanej kamienicy.

Wymienione instalacje
- elektryczna,
- gazowa (nowy piec dwufunkcyjny),
- wodno-kanalizacyjna.

Wymienione wszystkie okna.
Na podłogach nowe panele.
Łazienka z wanną pięknie wykończona.
Do mieszkania przynależy piwnica - 8m2 oraz pomieszczenie gospodarcze na klatce schodowej - 1,5m2.
Zapraszam

 
FOCUS NIERUCHOMOŚCI KATARZYNA CHOROMAŃSKA OROWICZ
Cztery Pory Roku 12 5
71-806 Szczecin
tel.: 881640777
email: biuro@focus.nieruchomosci.pl
Wyślij ofertę na e-mail

Jeśli chcesz dostać tą ofertę w e-mailu,
podaj swój adres.
 
 

Prześlij wiadomość do naszej firmy
Imię i Nazwisko 
Telefon 
E-mail 
Treść zapytania 

Wyrażam zgodę na przetwarzanie moich danych osobowych przez firmę dla celów związanych z działalnością pośrednictwa w obrocie nieruchomościami, jednocześnie potwierdzam, iż zostałem poinformowany o tym, iż będę posiadać dostęp do treści swoich danych do ich edycji lub usunięcia.