nieruchomości
Wypełnij formularz i kliknij SZUKAJ poniżej

Numer oferty
 
 
Lokalizacja
Ulica
Cena
Powierzchnia
Liczba pokoi
oferty specjalne

Notes » Zgłoś ofertę » Kalkulator opłat » Wirtualne spacery » O nas » Opinie techniczne » Świadectwo Ener. » Kontakt »

Szczegóły Oferty

dom blizniak ( sprzedaż )

430806

Numer:
430806
Miasto:
BEZRZECZE
Cena:
1 250 000 PLN kalkulator
Cena za mkw:
9 765,63 PLN mkw
Powierzchnia:
128.00 m2
Pow. działki:
450.00 m2
Liczba pokoi:
5
Rodzaj kuchni:
aneks
Rok budowy:
2025
Droga dojazdowa:
asfaltowa
Media - gaz:
TAK

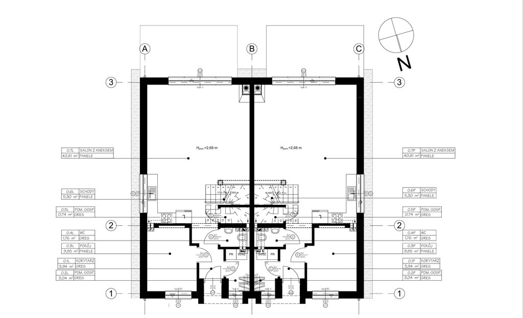
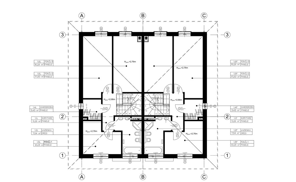
Opis


Do sprzedania nowo powstająca inwestycja sześciu lokali mieszkalnych w zabudowie bliźniaczej położona na Bezrzeczu. Domy budowane z bloczków silikatowych ocieplony styropianem 15 cm ,dach pokryty dachówką ceramiczną ocieplony pianą pur, okna PCV, ściany tynki gipsowe. CO i CW własne gazowe w całości ogrzewanie podłogowe. Do każdego lokalu przynależą po dwa miejsca postojowe oraz ogródki ok. 450 m2. Planowany termin zakończenia prac grudzień 2025 rok. Zaplanowana struktura zamkniętego osiedla. Blisko szkoła komunikacja miejska oraz sieci handlowe. Zainteresowane osoby zapraszam na prezentację.

 
FOCUS NIERUCHOMOŚCI KATARZYNA CHOROMAŃSKA OROWICZ
Cztery Pory Roku 12 5
71-806 Szczecin
tel.: 881640777
email: biuro@focus.nieruchomosci.pl
Wyślij ofertę na e-mail

Jeśli chcesz dostać tą ofertę w e-mailu,
podaj swój adres.
 
 

Prześlij wiadomość do naszej firmy
Imię i Nazwisko 
Telefon 
E-mail 
Treść zapytania 

Wyrażam zgodę na przetwarzanie moich danych osobowych przez firmę dla celów związanych z działalnością pośrednictwa w obrocie nieruchomościami, jednocześnie potwierdzam, iż zostałem poinformowany o tym, iż będę posiadać dostęp do treści swoich danych do ich edycji lub usunięcia.