nieruchomości
Wypełnij formularz i kliknij SZUKAJ poniżej

Numer oferty
 
 
Lokalizacja
Ulica
Cena
Powierzchnia
Liczba pokoi
oferty specjalne

Notes » Zgłoś ofertę » Kalkulator opłat » Wirtualne spacery » O nas » Opinie techniczne » Świadectwo Ener. » Kontakt »

Szczegóły Oferty

dom blizniak ( sprzedaż )

908543

Numer:
908543
Miasto:
GRZEPNICA
Cena:
759 000 PLN kalkulator
Cena za mkw:
7 169,85 PLN mkw
Powierzchnia:
105.86 m2
Pow. działki:
214.00 m2
Liczba pokoi:
5
Rodzaj kuchni:
aneks
Rok budowy:
2024
Droga dojazdowa:
polna

Opis


Grzepnica ul. Kwiat Jabłoni - Otulina Lasu
Ostani dostępny dom w inwestycji 4 domów w zabudowie bliźniaczej na działkach od 214m2 do 280m2.

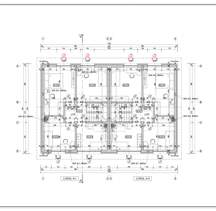
PARTER
- Wiatrołap 4,70m2
- Komunikacja 6,68m2
- Pokój 7,75m2
- Aneks kuchenny 6,74m2
- Salon + Jadalnia 22,98m2
- Łazienka 2,97m2
Razem 51,82m2

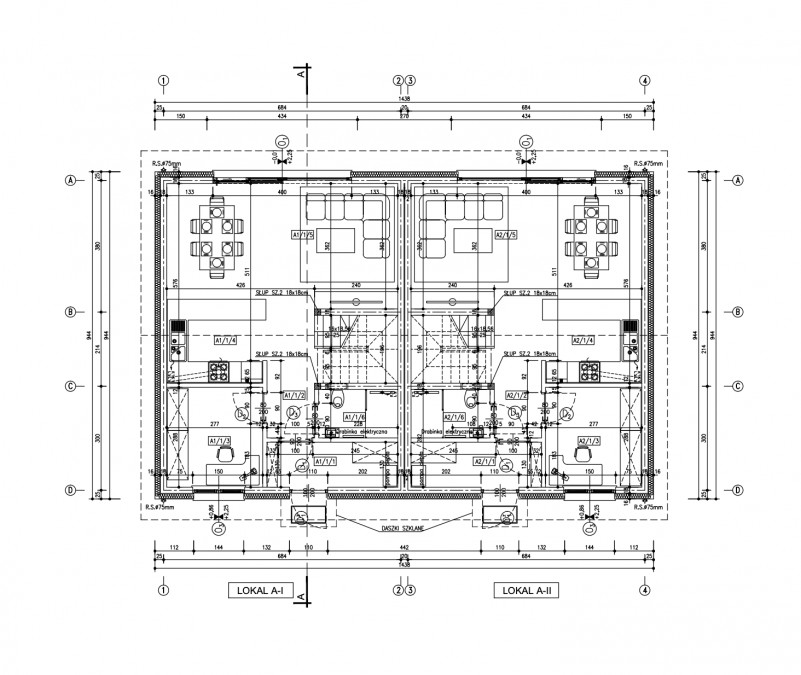
I PIĘTRO
- Komunikacja 8,47m2
- Łazienka 8,81m2
- I Pokój 10,34m2
- II Pokój 14,74m2
- III Pokój 11,68m2
Razem 54,04m2

Istnieje możliwość adaptacji powierzchni strychowej na użytkową całkowitą ok. 20m2.

Ściany nośne zewnętrzne wykonane z pustaków silikatowych. Termoizolacja wykonana ze styropianu 20 cm.
Dach pokryty dachówkącementową.
Okna PCV 3-szybowe. Drzwi wejściowe antywłamaniowe Gerda.
C.O. - Ogrzewanie podłogowe rozprowadzone po całej powierzchni domu.
C.O. / C.W. - Pompa ciepła powietrze - woda.

Instalacje wewnętrzne
- punkty świetlne na tarasie, kabel elektryczny wypuszczony na tarasie. Okablowanie do sterowania roletami antywłamaniowymi. Instalacja TV-Sat w każdym pokoju.

Ogród ogrodzony siatkąoraz furtka. Podjazd wykończony polbrukiem. Przed domem 2 miejsca postojowe.

W roku 2025 Gmina wyremontuje drogę Gminnądojazdową

 
FOCUS NIERUCHOMOŚCI KATARZYNA CHOROMAŃSKA OROWICZ
Cztery Pory Roku 12 5
71-806 Szczecin
tel.: 881640777
email: biuro@focus.nieruchomosci.pl
Wyślij ofertę na e-mail

Jeśli chcesz dostać tą ofertę w e-mailu,
podaj swój adres.
 
 

Prześlij wiadomość do naszej firmy
Imię i Nazwisko 
Telefon 
E-mail 
Treść zapytania 

Wyrażam zgodę na przetwarzanie moich danych osobowych przez firmę dla celów związanych z działalnością pośrednictwa w obrocie nieruchomościami, jednocześnie potwierdzam, iż zostałem poinformowany o tym, iż będę posiadać dostęp do treści swoich danych do ich edycji lub usunięcia.