nieruchomości
Wypełnij formularz i kliknij SZUKAJ poniżej

Numer oferty
 
 
Lokalizacja
Ulica
Cena
Powierzchnia
Liczba pokoi
oferty specjalne

Notes » Zgłoś ofertę » Kalkulator opłat » Wirtualne spacery » O nas » Opinie techniczne » Świadectwo Ener. » Kontakt »

Szczegóły Oferty

mieszkanie ( sprzedaż )

908511

Numer:
908511
Miasto:
SIANOŻĘTY
Ulica:
LOTNICZA
Cena:
669 000 PLN kalkulator
Cena za mkw:
19 130,68 PLN mkw
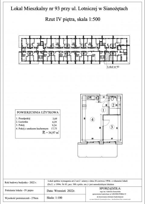
Powierzchnia:
34.97 m2
Liczba pokoi:
2
Piętro:
4
Liczba pięter:
4
Rodzaj kuchni:
aneks
Rok budowy:
2022
Telefon:
TAK
Internet:
TAK
TV kablowa:
TAK
Winda:
TAK
Parking:
TAK
Kanalizacja:
TAK
Media - gaz:
TAK
Media - woda:
TAK

Opis


Sianożędy Perłowa Przystań - I-wsza linia zabudowy!

Mieszkanie 2-pokojowe, w pełni umeblowane, zlokalizowane na 4, ostatnim piętrze w inwestycji przy plaży - zaledwie 3 kroki do Morza. Mieszkanie w pełni wykończone i umeblowane. nie wymaga żadnych nakładów finansowych. W salonie oraz sypialni znajdujęsię okna balkonowe w systemie HS z wyjściem na przestronny taras od strony południowej. Aneks kuchenny w pełni wyposażony. W salonie została wyodrębniona stefia jadalniana. W sypialni znajduje się przestronna szafa w zabudowie.

Lokal znajduje sięw budynku oddanym do użytku w 2022 roku. Z uwagi na topową lokalizację, nieruchomośćidealnie nadaje sięjako inwestycja z tytułu najmu krótkoterminowego oraz lokaty kapitału - inwestycje w I linii zabudowy, zyskują na wartości ponad przeciętnie.

Istnieje możliwość zakupu miejsca postojowego na terenie inwestycji ( 42,000 zł + 23% Vat ).

Mieszkanie gotowe do wydania.


Cena Netto - Należy doliczyć23% Vat.

 
FOCUS NIERUCHOMOŚCI KATARZYNA CHOROMAŃSKA OROWICZ
Cztery Pory Roku 12 5
71-806 Szczecin
tel.: 881640777
email: biuro@focus.nieruchomosci.pl
Wyślij ofertę na e-mail

Jeśli chcesz dostać tą ofertę w e-mailu,
podaj swój adres.
 
 

Prześlij wiadomość do naszej firmy
Imię i Nazwisko 
Telefon 
E-mail 
Treść zapytania 

Wyrażam zgodę na przetwarzanie moich danych osobowych przez firmę dla celów związanych z działalnością pośrednictwa w obrocie nieruchomościami, jednocześnie potwierdzam, iż zostałem poinformowany o tym, iż będę posiadać dostęp do treści swoich danych do ich edycji lub usunięcia.