nieruchomości
Wypełnij formularz i kliknij SZUKAJ poniżej

Numer oferty
 
 
Lokalizacja
Ulica
Cena
Powierzchnia
Liczba pokoi
oferty specjalne

Notes » Zgłoś ofertę » Kalkulator opłat » Wirtualne spacery » O nas » Opinie techniczne » Świadectwo Ener. » Kontakt »

Szczegóły Oferty

dom blizniak ( sprzedaż )

401597

Numer:
401597
Miasto:
MIERZYN
Cena:
989 000 PLN kalkulator
Cena za mkw:
8 990,91 PLN mkw
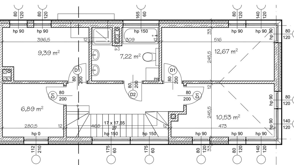
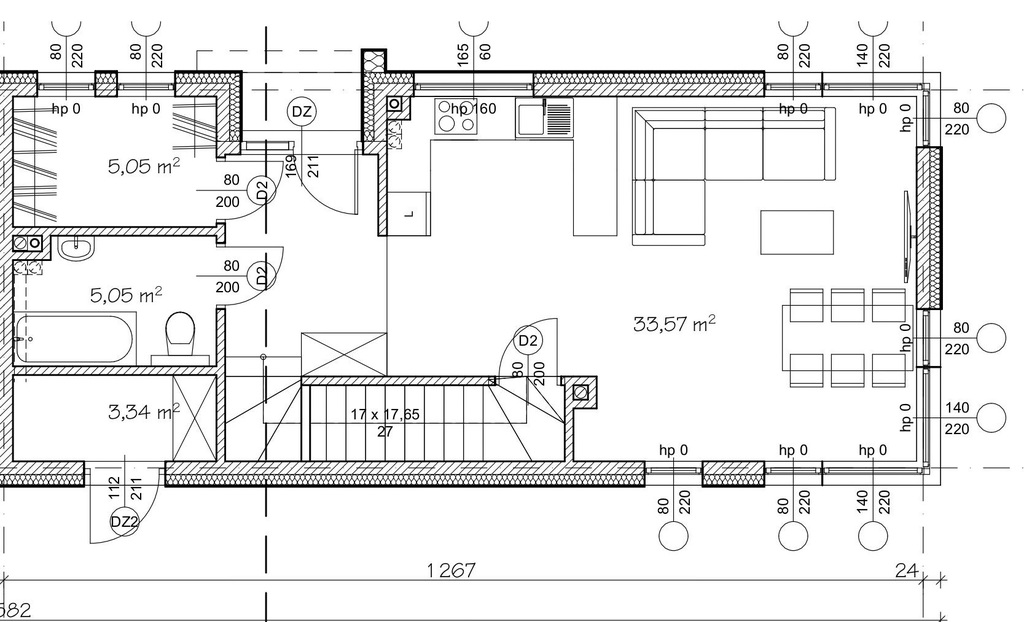
Powierzchnia:
110.00 m2
Pow. działki:
350.00 m2
Liczba pokoi:
5
Rodzaj kuchni:
aneks
Rok budowy:
2022
Media - gaz:
TAK

Opis


Nowo powstająca inwestycja mini osiedla 12 lokali mieszkalnych jednorodzinnych w zabudowie bliźniaczej, po 110 m powierzchni użytkowej na działkach po ok 350 m2. Ceny od 939 tys zł. Inwestycja zostanie oddana w stanie deweloperskim III kwartał 2023 rok. przeniesienie prawa własności IV kwartał 2023r. Domy wybudowane z bloczków sylikatowych, ocieplone styropianem 15 cm, okna trójszybowe, dachówka ceramiczna. CO i CW piec gazowy kondensacyjny ogrzewanie podłogowe w całości budynku. Dojazd do posesji drogą wewnętrzną wyłożoną kostką polbrukową. Do każdego lokalu przynależą po dwa miejsca postojowe. Chcąc zapoznać się z aktualną ofertą proszę o kontakt z maklerem prowadzącym.

 
FOCUS NIERUCHOMOŚCI KATARZYNA CHOROMAŃSKA OROWICZ
Cztery Pory Roku 12 5
71-806 Szczecin
tel.: 881640777
email: biuro@focus.nieruchomosci.pl
Wyślij ofertę na e-mail

Jeśli chcesz dostać tą ofertę w e-mailu,
podaj swój adres.
 
 

Prześlij wiadomość do naszej firmy
Imię i Nazwisko 
Telefon 
E-mail 
Treść zapytania 

Wyrażam zgodę na przetwarzanie moich danych osobowych przez firmę dla celów związanych z działalnością pośrednictwa w obrocie nieruchomościami, jednocześnie potwierdzam, iż zostałem poinformowany o tym, iż będę posiadać dostęp do treści swoich danych do ich edycji lub usunięcia.